Chalet pareado con encanto indiano y vistas a la ría

Pareado en venta en Bergondo, A Coruña

Bergondo

Ref. 2264 267 m2 4 2
venta: 290.000 

Les presentamos este excelente chalet pareado de 267 m² construidos, en tres plantas, que combina la elegancia de la arquitectura indiana con reformas actuales que garantizan confort y eficiencia.


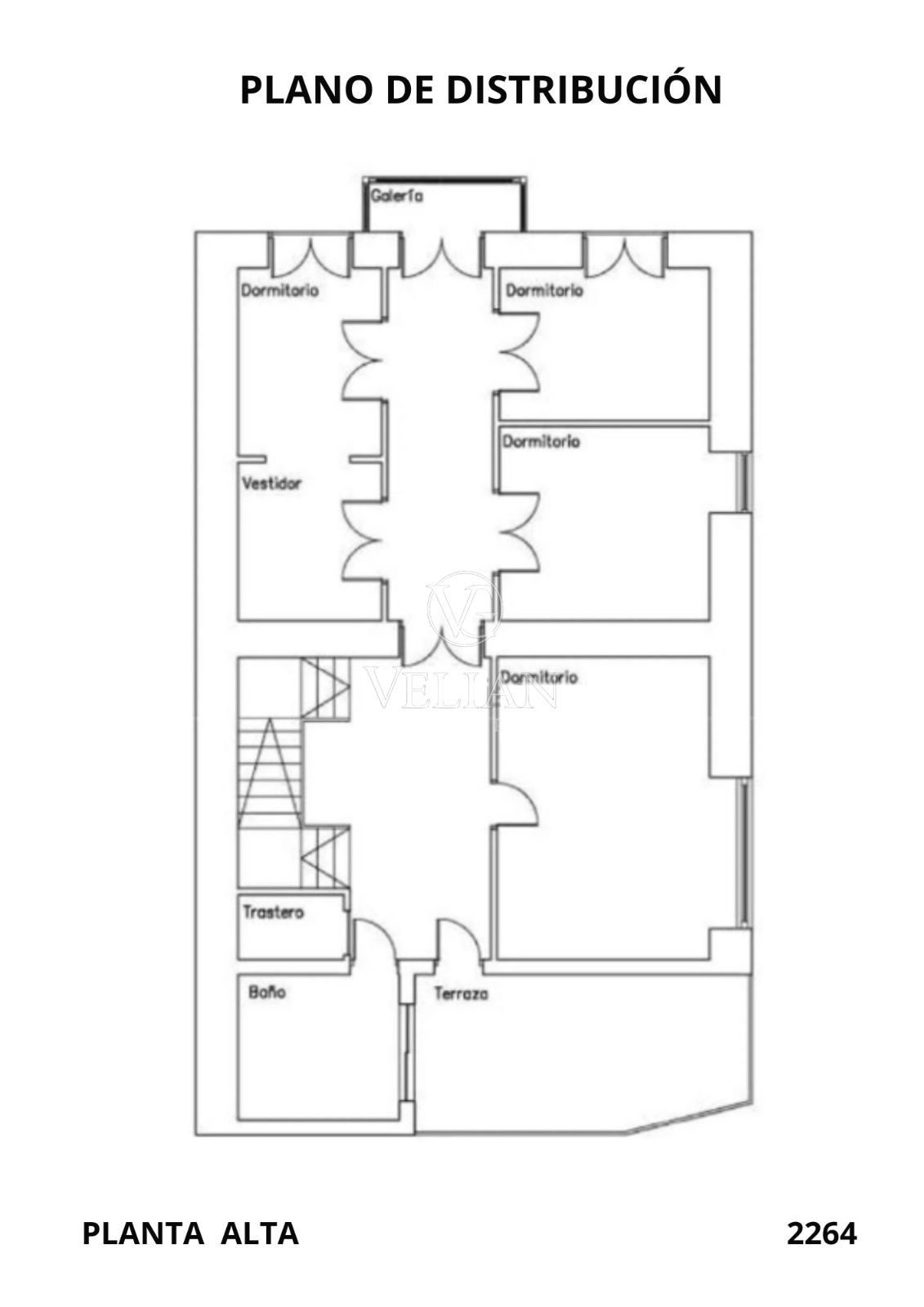
Dispone de cuatro dormitorios (dos con vistas a la ría), un baño con hidromasaje, un aseo, salón-comedor luminoso, cocina equipada de estilo rústico-moderno con electrodomésticos integrados y chimenea, despacho con vistas al jardín, lavadero y zona independiente de almacenaje.


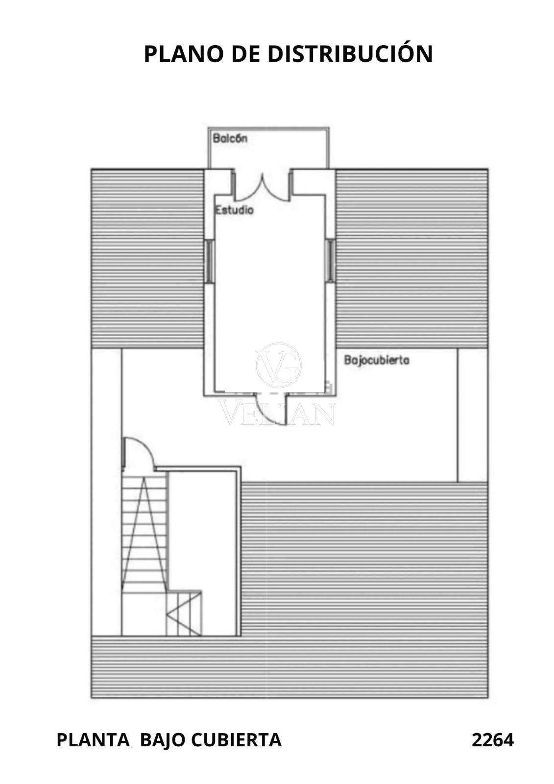
La vivienda se complementa con dos espacios exteriores únicos: un jardín delantero soleado y una terraza privada en la primera planta con vistas relajantes hacia la ría. La planta bajo cubierta ofrece un amplio espacio diáfano con múltiples posibilidades.


Entre sus mejoras destacan la calefacción por hidro estufa de pellets (2025), fachadas rehabilitadas y pintadas en tonos claros, renovación de las instalaciones eléctrica y de fontanería. Actualmente se está colocando suelo porcelánico en el perímetro de la vivienda y se está actualizando el tejado.


En un entorno rodeado de naturaleza y a un paso de colegios, playas y todos los servicios, esta casa es una oportunidad única para disfrutar de un hogar con carácter e historia.


Te recordamos que este anuncio se muestra a título informativo y no contractual ya que no es vinculante y puede contener errores.


Índice de alquiler

Precio Venta 290.000 €
Precio/m² 1.086
Año de construcción 1920
Construidos 267 m2
Útiles 241 m2
Parcela 169 m2
Dormitorios 4
Baños 2
Cocina Amueblada
Orientación NORTE, SUROESTE
Estado Muy Bueno
Calificación Energética Exento
Luz
Agua
La dirección del inmueble es aproximada.

Inmuebles similares:

 
Pareado en venta en Granada, con 80 m2, 4 habitaciones y 2 baños, Amueblado, Aire acondicionado y Calefacción Bomba frío/calor.
299.900 €
 80 m2  4  2
Contacta con tu asesor
Inmaculada Sáez
Solicita información

Si deseas más información sobre esta propiedad, por favor, rellena el formulario: