Dúplex en venta en Marbella, Málaga

Ref. 2143 317 m2 3 3
venta: 7.500.000 

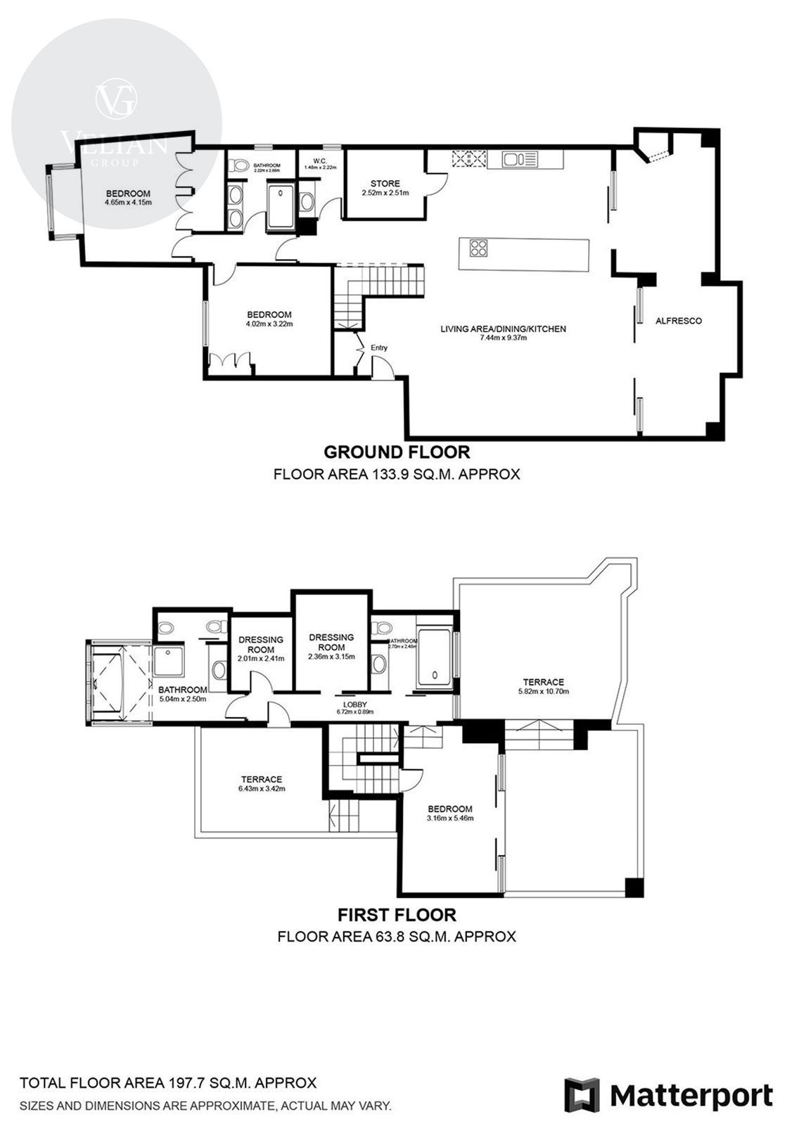
Situado en el corazón del resort de playa más exclusivo de Marbella, este exquisito ático dúplex se encuentra dentro del codiciado Marina Puente Romano. A pocos pasos del mar Mediterráneo y del icónico Puente Romano Beach Resort, esta residencia ofrece una rara combinación de diseño sofisticado, confort y vida de lujo en una de las comunidades cerradas más prestigiosas de Marbella.Totalmente renovado hace solo unos años con los más altos estándares, la propiedad cuenta con una estética contemporánea mientras conserva una sensación de calidez y elegancia. El complejo en sí ofrece seguridad las 24 horas, jardines subtropicales impecablemente mantenidos y una piscina comunitaria, asegurando tranquilidad y disfrute durante todo el año.El nivel de entrada le da la bienvenida con un elegante vestíbulo, que cuenta con un armario empotrado y conduce a un espacio de vida de concepto abierto bellamente diseñado. La cocina es elegante y moderna, equipada con una isla, muebles a medida y electrodomésticos de primera línea, perfecta tanto para el entretenimiento como para la vida diaria. La sala de estar y el comedor adyacentes son espaciosos y luminosos, con una chimenea de gas que aporta un toque acogedor. Grandes puertas de vidrio se abren a una encantadora terraza cubierta, un escenario idílico para cenar al aire libre o relajarse en los meses de verano.También en este nivel, encontrará un elegante dormitorio en suite y una habitación adicional que actualmente se utiliza como oficina en casa, que puede convertirse fácilmente en un cuarto dormitorio. Un aseo de invitados añade comodidad adicional.En la planta superior, la impresionante suite principal es un verdadero santuario. Generosamente proporcionada, cuenta con dos vestidores y un lujoso baño en suite. La suite se abre a una espectacular terraza de dos niveles. El nivel inferior está cubierto y es ideal para descansar, mientras que el nivel superior ofrece un jacuzzi y vistas parciales al mar y a los jardines exuberantes, un espacio excepcional para la relajación privada. Una segunda terraza abierta en este piso da a las pistas de tenis y disfruta de abundante sol por la tarde, perfecta para tomar el sol o disfrutar de un momento tranquilo al aire libre.Las características adicionales de esta extraordinaria propiedad incluyen calefacción por suelo radiante y aire acondicionado en partes de la casa, asegurando comodidad durante todo el año. También se incluye en el precio una plaza de aparcamiento privada y un trastero en el garaje subterráneo.Este ático presenta una rara oportunidad de poseer una propiedad contemporánea lista para mudarse dentro del prestigioso Marina Puente Romano. Ya sea que esté buscando una residencia permanente, una casa de vacaciones o una inversión en una de las ubicaciones más demandadas de Marbella, esta casa ofrece un estilo de vida de elegancia y exclusividad. Se recomienda encarecidamente realizar visitas para apreciar completamente la calidad excepcional y el ambiente de esta hermosa propiedad.

Índice de alquiler

Precio Venta 7.500.000 €
Precio/m² 23.659
Construidos 317 m2
Dormitorios 3
Baños 3
Ascensor
Aire acondicionado
Piscina comunitaria
Calificación Energética En trámite
La dirección del inmueble es aproximada.

Inmuebles similares:

 
Dúplex en venta en Marbella, con 249 m2, 3 habitaciones y 3 baños, Piscina y Ascensor.
7.200.000 €
 249 m2  3  3
Solicita información

Si deseas más información sobre esta propiedad, por favor, rellena el formulario: