Conjunto de edificaciones con gran potencial en el centro de A Estrada

Chalet Independiente en venta en A Estrada, Pontevedra

A Estrada

Ref. 2401 388 m2 4 1 1
venta: 220.000 

En una de las zonas más céntricas y mejor comunicadas de A Estrada, a un paso de la Iglesia de San Paio, del ayuntamiento, colegios, supermercados y todos los servicios, se encuentra esta propiedad con tres edificaciones que ofrecen un enorme potencial tanto para reforma integral como para inversión inmobiliaria.

La edificación principal cuenta con tres plantas: una planta baja de 114 m² (79 m² de garaje y cocina), una primera planta de 118 m² de vivienda con terraza y patio interior, y una planta bajo cubierta de 68 m² actualmente utilizada como trastero.

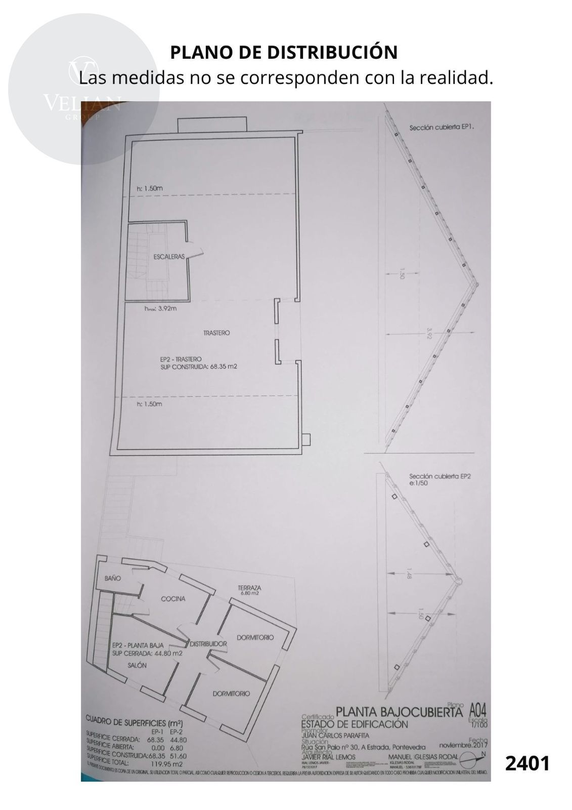
La segunda edificación, también de tres plantas, dispone de dos niveles de semisótano de 51 m² cada uno, destinados a almacén, y una planta baja de 51 m² de vivienda con terraza de 7 m².

La tercera edificación adosada, de 46 m², está destinada a almacén, aunque podría adaptarse fácilmente como una pequeña vivienda independiente.

Se han realizado mejoras recientes, como el cambio de suelo y puertas en la primera planta hace tres años, y la renovación del tejado y las ventanas hace una década. Una de las viviendas está parcialmente reformada (ventanas, baño y pintura), mientras que otra se encuentra alquilada actualmente, lo que permite obtener rendimiento inmediato.

Por su distribución, superficie total y ubicación, esta propiedad representa una excelente oportunidad de inversión, ideal para rehabilitar y desarrollar varias viviendas o un edificio de tres plantas en pleno corazón de A Estrada.

Te recordamos que este anuncio se muestra a título informativo y no contractual ya que no es vinculante y puede contener errores.


Índice de alquiler

Año de construcción 1955
Construidos 388 m2
Útiles 151 m2
Parcela 481 m2
Precio/m² 567 €/m²
Dormitorios 4
Baños 1
Amueblado
Cocina Amueblada
Calefacción Gasóleo
Trastero
Garajes 1
Orientación Oeste
Estado A reformar
Calificación Energética Exento
Luz
Agua
La dirección del inmueble es aproximada.

Inmuebles similares:

 
Chalet Independiente en venta en Dodro, con 308 m2, 5 habitaciones y 2 baños, Garaje, Trastero, Amueblado y Calefacción Gasóleo.
193.000 €
 308 m2  5  2
 
Chalet Independiente en venta en Ribeira, con 263 m2, 6 habitaciones y 2 baños, Trastero, Amueblado y Calefacción cocina de leña.
210.000 €
 263 m2  6  2
Contacta con tu asesor
Inmaculada Sáez (Venta)
Solicita información

Si deseas más información sobre esta propiedad, por favor, rellena el formulario: